Quadrilocale in vendita

Borgaro Torinese, Via Antonio Gramsci
€ 119.000
4 locali 4 locali
81 Mq 81 Mq
1 bagno 1 bagno

Quadrilocale in vendita

Borgaro Torinese, Via Antonio Gramsci

Descrizione annuncio

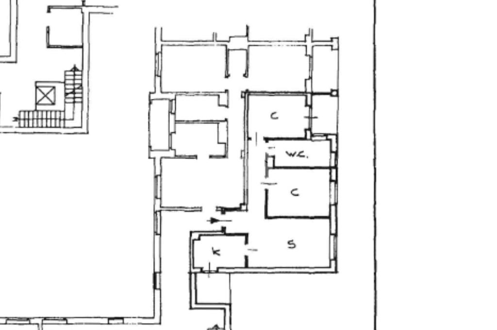
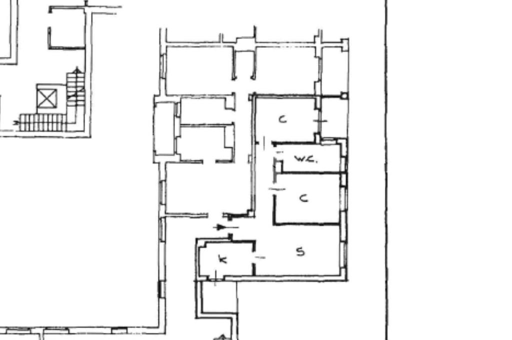
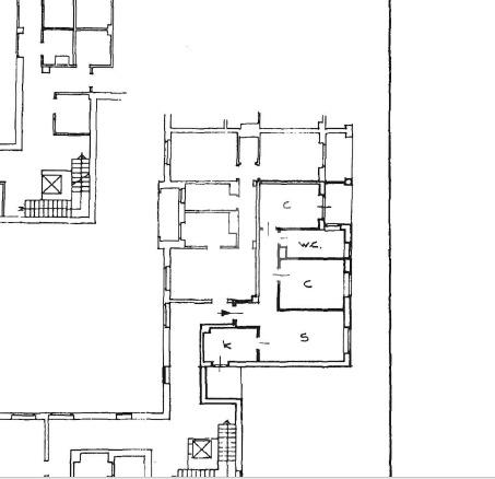
COSA SAPERE DELL'IMMOBILE: Appartamento completamente ristrutturato sito al terzo piano con ascensore.

L' immobile si distingue per le comode dimensioni di tutti gli ambienti e per l'ottimo stato interno.

L'immobile è di 81 mq ed è composto da:

-ingresso con porta blindata;

-ampio soggiorno;

-cucina con accesso al primo balcone;

-bagno finestrato di generose dimensioni con doccia;

-camera da letto ampia e luminosa;

-cameretta con accesso al secondo balcone.

-soffitta;

PUNTI DI FORZA;

-ambienti di generose dimensioni;

-riscaldamento autonomo;

-climatizzatore inverter;

-piano alto con ascensore;

-serramenti e zanzariere recentemente sostituiti;

- entrambi i balconi sono dotati di tende estate/inverno;

-la posizione offre un contesto tranquillo, con la comodità di avere servizi e collegamenti facilmente accessibili.

Per avere ulteriori informazioni o per visitare l'immobile potete chiamarci al numero 011.4508023, scriverci su whatsapp al 340.1794610 o passare presso l'Affiliato TECNORETE di Via Martiri della Libertà n. 24 a Borgaro Torinese (TO).

Offriamo inoltre un servizio di consulenza mutuo o finanziamento con i nostri professionisti KIRON.

Siamo a disposizione per una valutazione GRATUITA E SENZA IMPEGNO del vostro immobile.

Mostra tutto

Nelle vicinanze

Trasporto pubblico Trasporto pubblico
Borgaro Torinese
Borgaro Torinese
1,2 Km
Venaria
Venaria
2,7 Km
Gramsci N.26
Gramsci N.26
140 m
Garibaldi
Garibaldi
250 m
Ricariche auto elettriche Ricariche auto elettriche
Borgaro Torinese Gramsci | EnelX
460 m
Palazzetto dello Sport Borgaro | EnelX
640 m
Borgaro Torinese Lanzo | EnelX
690 m
Borgaro Torinese Biblioteca Civica | EnelX
1,1 Km
Scuole Scuole
Scuola primaria "Grosa"
670 m
Scuola primaria "Defassi"
710 m
Scuola secondaria di primo grado "Levi"
720 m
Scuola Primaria Parificata "Barolo"
2,8 Km
Scuola Elementare Edmondo de Amicis
2,9 Km
Farmacia Farmacia
Farmacia
480 m
Farmacia San Rocco
2,8 Km
Farmacia Comunale 2
2,9 Km
Supermercati Supermercati
Supermercati
390 m
Aldi
1,3 Km
Bennet
2,2 Km
iN's Mercato
2,6 Km
Ekom
2,7 Km
Negozi Negozi
Negozi
380 m
Pane e Dolcezze
2,9 Km
Bar Bar
Bar
410 m
La Luna
660 m
Ristoranti Ristoranti
Ristoranti
110 m
du village
580 m
El Chico Loco
2,1 Km
Trattoria Port Dij Gai
2,2 Km
Totò e Peppino
2,7 Km
Mostra tutto

Caratteristiche

Rif.:
61179988
Piano:
3 di 4 con ascensore (Piano alto)
Balconi:
2
Camere da letto:
2
Arredamento:
Assente
Condizionamento:
Autonomo
Mostra tutto
Prezzo Prezzo
€ 119.000
Rata mutuo Rata mutuo
€ 556 / mese
Spese annue Spese annue
€ 1.000
Proponi il tuo prezzoProponi il tuo prezzo

Classe Energetica

G
G
G
G
G
G
G
G
G
EP globale non rinnovabile:
187.67 kW h/m² anno
EP globale rinnovabile:
1.15 kW h/m² anno
EP invernale del fabbricato:
EP estiva del fabbricato:
Anno di costruzione:
1985
Riscaldamento:
Autonomo
Tipo impianto:
A radiatori
Tipo alimentazione:
Metano

Ti interessa visionare l'immobile?

Fissa un appuntamento  Fissa un appuntamento

Richiedi informazioni

Clicca su Leggi per aprire l'informativa
* Questi campi sono obbligatori

Calcola il tuo mutuo

Semplice e senza impegno
Anticipo

( % )
Mutuo

( % )

pochi semplici passi

inserisci i tuoi dati
Questionario completato
Grazie per aver richiesto un appuntamento senza impegno con un nostro Consulente del Credito e Assicurativo.

Hai inserito correttamente tutti i dati necessari e a breve riceverai una e-mail con un link da convalidare per inviare i tuoi dati.
Affiliato
Duegi Sas
Via Martiri della Libertà, 24 10071 Borgaro Torinese (TO)

Il nostro staff


  • Giuseppe Gullo
    Affiliato

  • Lucia Francavilla
    Responsabile
Via Martiri della Libertà, 24 10071 Borgaro Torinese (TO)
Zona: Borgaro Torinese
Mostra su mappa
Orari: lunedì-venerdì 09.00/12.30 14.30/20.00 sabato 09/12.30 14.30/19.00
Affiliato
Duegi Sas
Via Martiri della Libertà, 24 10071 Borgaro Torinese (TO)

2026 Tecnocasa Franchising S.p.A. - P. IVA 08365160152 - Via Monte Bianco 60/A 20089 Rozzano (MI). Ogni agenzia ha un proprio titolare ed è autonoma. Privacy policy | Policy utilizzo | Cookie policy